Детальний опис об`єкта №165821:
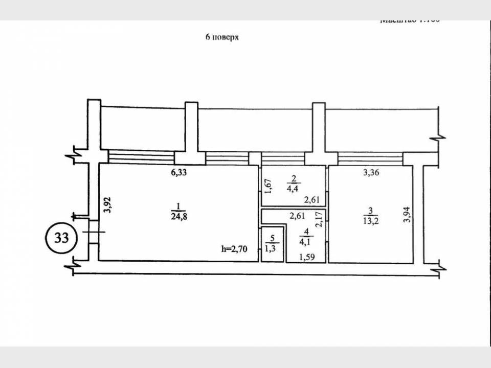
1 к, Черкаси, Центр, бул. Тараса Шевченка. Однокімнатна квартира в центрі Черкас для зручного проживання або інвестицій. Під ремонт. Продається квартира в самому центрі міста — відмінний варіант як для комфортного проживання, так і для вигідної інвестиції. Основні характеристики: * Площа: 47.8 м² * Поверх: 6 / 6 (цегляний будинок) * Ліфт: відсутній * Стан: під ремонт * Опалення: централізоване * Комунікації: електрика, вода, каналізація. Виконано розведення труб води та каналізації до точок підключення. Планування: * Кухня-вітальня * Окрема спальня * 2 санвузли (зручно для життя або оренди) * Місце під гардеробну Головна перевага: Є можливість облаштувати відкриту лоджію з видом на бульвар Шевченка — ідеальний простір для відпочинку, кави зранку чи зустрічей з друзями. Локація — максимальний комфорт: Центр міста, поруч ТРЦ, магазини, кафе, транспорт, розваги — усе в пішій доступності, поруч з Будинком торгівлі. До оголошення додається візуалізація можливого ремонту та облаштування лоджії.
Цікавлять деталі?
Введіть Вашe им`я:
:
Введіть Ваш телефон:
:

